Art Café
2018-08-08
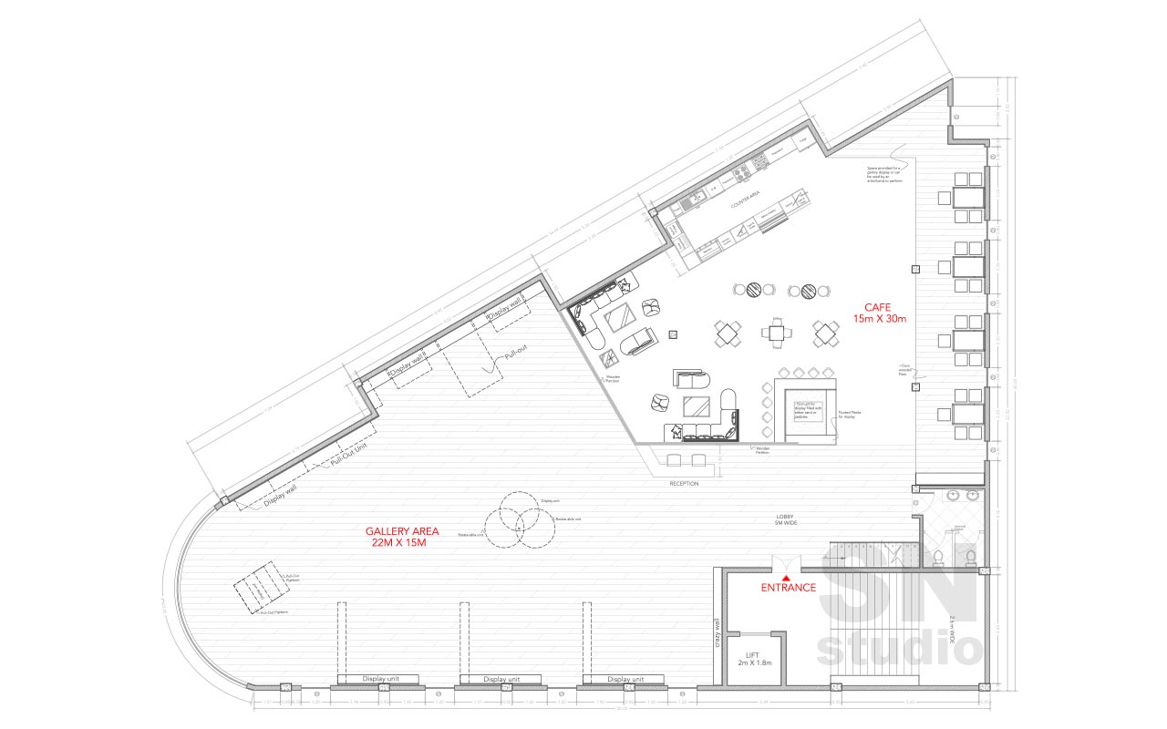
The Art Cafe was a fun project designed around the idea of ‘Flexibility’ in Interiors. The concept plays with the merger of two different public spaces–– A Coffee Shop and an Art Gallery. It also tries to explore other spaces, such as an exhibition area and a retail store.